Accueil
Services
Réalisations
Contact
Accueil
Réalisations
Projets en cours - Réalisations
Réalisations
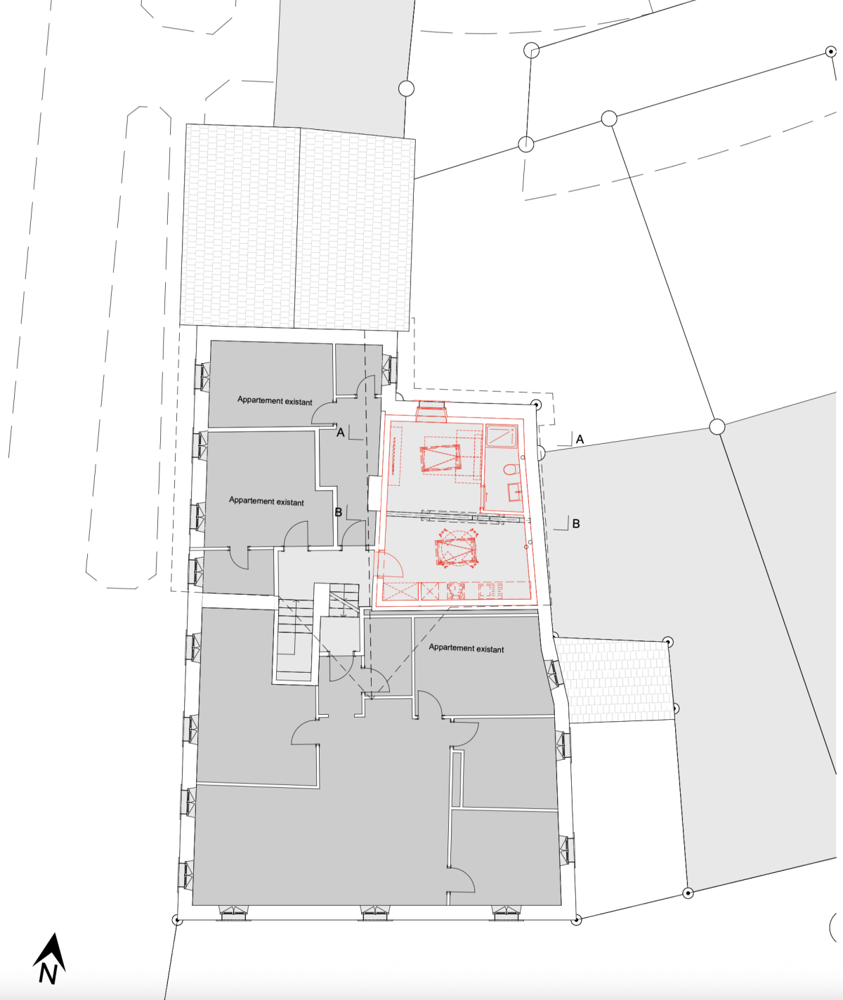
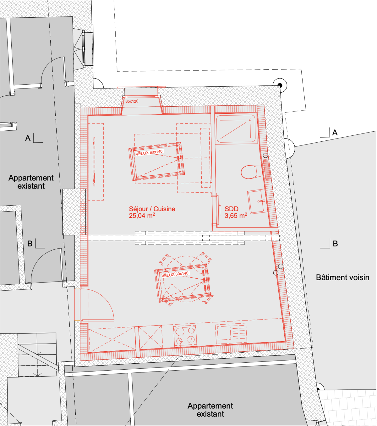
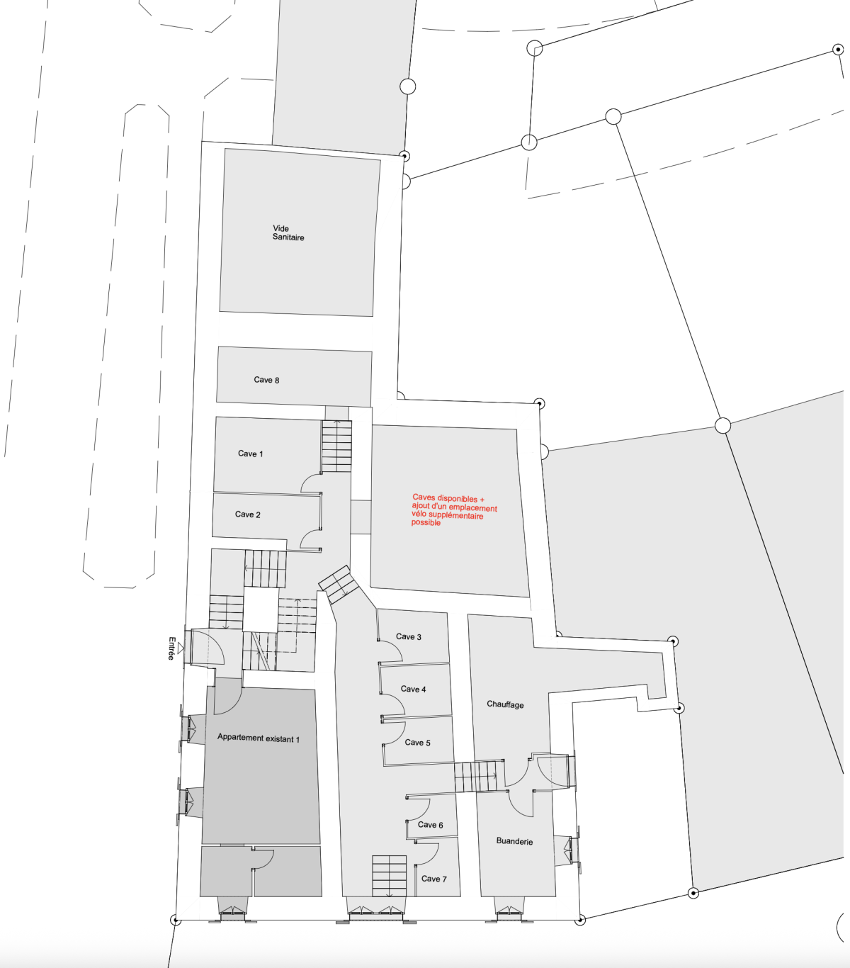
Projet de transformation d'un local existant en studio - Bex
Recherche
Ce site peut utiliser des cookies et des scripts externes.
Plus d'informations
Nécessaire
Paramètres
Statistiques
Marketing
Enregistrer les modifications
Réglages
Rejeter
Accepter tous les cookies
Accepter tous les cookies
Réglages
Rejeter